トップページ | 物件情報 | グランドメゾン白金の杜ザ・タワー

 
■物件名称/グランドメゾン白金の杜ザ・タワー
■所在地/東京都港区白金6-16-25
■交通/東京メトロ南北線・都営三田線「白金台」駅 徒歩11分 東京メトロ日比谷線「広尾」駅 徒歩14分 JR山手線・埼京線・湘南新宿ライン「恵比寿」駅 徒歩16分
■土地権利/所有権
■土地面積/6,889.07㎡(内持分 2,530,330分の6,825)
■構造/鉄筋コンクリート造 地下1階付30階建 22階部分
■用途地域/第一種住居地域・準工業地域
■総戸数/334戸
■築年月/平成27年5月
■分譲主/積水ハウス(株)
■施工会社/大成建設(株)
■管理会社/三菱地所コミュニティ(株)
■管理方式/全部委託(常勤)
■駐車場/空無
■ペット飼育/相談(要承認・使用細則有り)
■事務所使用/不可
■本体設備/エレベーター・オートロック


 
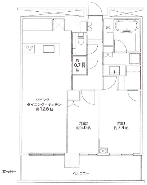
■専有面積/68.25㎡(壁芯)
■バルコニー面積/14.04㎡
■22階部分
■管理費/21,300円(月額)
■修繕積立金/20,500円(月額)
■SESシステム利用料/1,423円(月額)
■現況/空室
■引き渡し/即可(残代金支払後)
 
 
 
※図面及び記載のリノベーション内容と現況が異なる場合は現況を優先させて頂きます。
※遮音性能の表記があるものは床材単体の性能である為、実際の建物ではこの性能が得られない場合があります。
※媒介契約及び売買契約結の際には、当社規定「反社会的勢力の排除条項」が特約として付帯されます。
※別途契約・利用料やチューナー等の機器が必要な場合があります。